Contact Us
 

£625,000

Brief Description

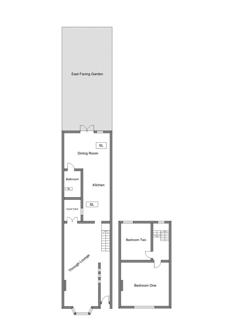
Situated on a tree-lined residential street in the ever sought-after 'Village Area' of Forest Gate is this beautifully presented two-bedroom Victorian terraced house. On the ground floor, you are welcomed with a bright and airy through lounge featuring a double-glazed bay window to the front and double-glazed French doors leading out to the courtyard, hardwood flooring throughout and a feature chimney breast with cast iron gas stove. To the rear of the property, you'll find a beautifully finished fitted kitchen with double-glazed windows looking out to the courtyard, skylights allowing lots of natural light throughout and substantial dining space. You will also find a luxuriously fitted bathroom along with double-glazed French doors leading out to an 80ft East-facing rear garden. The First section of the garden has a patio with raised flower borders and the second section of the garden comprises of laid lawn. An additional patio area with access to your own summer house with lighting and heating is found at the rear. On the first floor, you'll find a double-glazed window to the rear, two double bedrooms, featuring natural light throughout and loft space with the potential to extend.

Main Description

Ridley Road benefits from its proximity to Forest Gate station on the Elizabeth Line, offering fast connections to Liverpool Street in as little as 14 minutes, with Wanstead Park Overground also nearby, expanding travel options across East London. The area is vibrant and well-served by a variety of independent cafes, restaurants, and local favourites including The Wild Goose Bakery, E7 Movement fitness studio, The Can Club family-friendly café and play zone, Fiore’s Italian eatery, new addition Tipi Coffee Co., Pretty Decent Beer Co., and the award-winning Holly Tree pub, named one of Time Out’s Top 50 London pubs. The property also benefits from being within the catchment area for the highly regarded Woodgrange Infant School, rated Good by Ofsted, and Godwin Junior School, which holds an Outstanding rating.

Viewings will be taking place on Saturday 25th April 2026, please call to arrange an appointment.

Ground Floor

Hallway

Open Plan Living Room (7.85m x 3.18m (25'9" x 10'5"))

Fitted Kitchen Area (8.08m x 2.34m (26'6" x 7'8" ))

Dining Area (2.08m x 1.50m (6'10 x 4'11))

Fitted Bathroom/WC (2.69m x 1.50m (8'10 x 4'11))

First Floor

Landing

Bedroom One (4.22m x 3.89m (13'10" x 12'9"))

Bedroom Two (3.33m x 2.62m (10'11" x 8'7"))

Exterior

Rear Garden (approximately 24.36m (approximately 79'11"))

Property Disclaimer
THE PROPERTY MISDESCRIPTION ACT 1991 Whilst Wilkinson Estate Agents endeavour to ensure the accuracy of property details produced and displayed, we have not tested any apparatus, equipment, fixtures and fittings or services so we cannot verify that they are connected, in working order or fit for the purpose. Photographs are for illustration only and may depict items not included in the sale of the property. Floor plans and measurements should not be relied upon for the purchase of carpets and any other fittings. Neither have we had a sight of the legal documents to verify the Freehold or Leasehold status of any property. A buyer is advised to obtain verification from their Solicitor and/or Surveyor. A Buyer must check the availability of any property and make an appointment to view before embarking on any journey to see a property.

Viewing

Please contact us on 0208 555 7218 if you wish to arrange a viewing appointment for this property, or require further information.

Energy Performance Certificate
Click here to view the Energy Efficiency Rating and Environmental Impact Rating for this property.


Disclaimer

Wilkinson E7 endeavour to maintain accurate depictions of properties in Virtual Tours, Floor Plans and descriptions, however, these are intended only as a guide and purchasers must satisfy themselves by personal inspection.
IE8 Alert! Cookie Alert!

To get the best possible experience using our website we recommend you upgrade to a modern web browser. More info